139 mq
2
2
Legnano: Proponiamo in Vendita Prestigioso Appartamento di 3 Locali in costruzione nel nuovo intervento residenziale di sole 8 unità in zona Centrale.
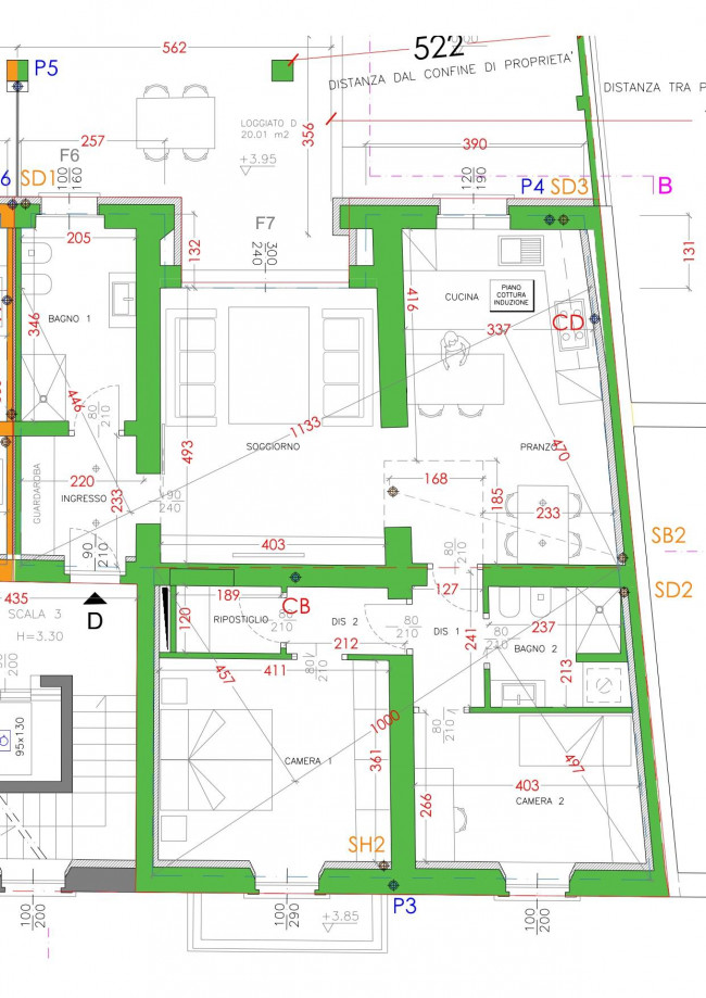
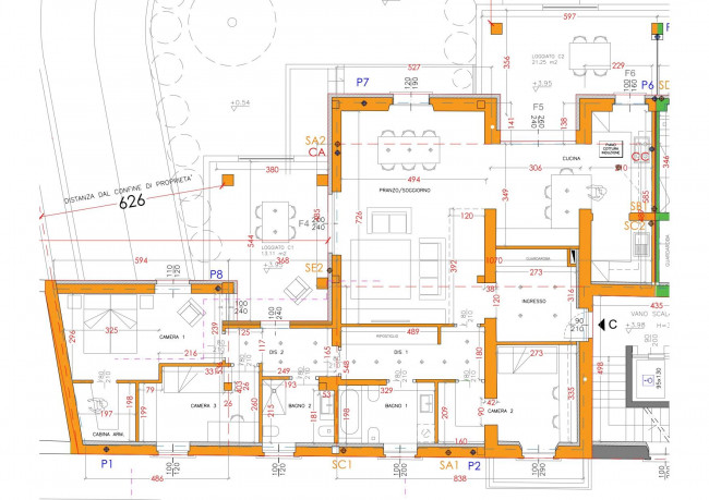
L'Appartamento posto al piano primo, è composto da 3 Locali con ampio ingresso, soggiorno e cucina abitabile, 2 camere, due bagni, ripostiglio e due ampie logge di mq. 20.
Il prezzo richiesto è di € 461.000,00 - GRAZIE AI BENEFICI FISCALI SI POTRANNO OTTENERE DETRAZIONI PARI AD €. 51.500,00
Tutti gli Appartamenti sono dotati di tecnologia all'avanguardia e uso di materiali a basso impatto ambientale.
Nella Nuova Residenza la cura del dettaglio, la scelta dei materiali e gli impianti tecnologici sono a servizio del vostro benessere, assicurandovi comfort, sicurezza ed efficienza energetica.
Tutte le abitazioni saranno certificate in Classe A3/4.
La flessibilità delle soluzioni abitative consente di creare spazi ad hoc che soddisfano tutti i gusti e le esigenze, rispecchiando lo stile e la personalità di chi vi abita.
Nella Nuova Residenza è ancora possibile scegliere la suddivisione degli spazi che più si avvicina alle vostre esigenze.
Il progetto è stato studiato per ottenere Appartamenti con spazi razionali, ambienti luminosi, spazi esterni da godere (balconi, terrazzi) e cantine.
Scegliere di vivere in questa Nuova Residenza significa poter disporre, nel raggio di brevissima distanza, di esercizi di vicinato e scuole, senza rinunciare alla comodità di abitare vicino al centro cittadino.
Il Nuovo Appartamento proposto in Vendita a Legnano, è identificato nella planimetria con la lettera D.
Possibilità di acquisto dell'ampio box singolo / doppio. - Rif. 604
CONSEGNA NOVEMBRE 2027
PRINCIPALI CARATTERISTICHE TECNICHE
Impiantistica completa con riscaldamento a pavimento, deumidificatore di ultima generazione con funzione di raffrescamento, raffrescamento a pavimento e canalizzata (doppio impianto)
Impianto di ricambio aria con recupero di energia e ventilazione forzata
Impianto fotovoltaico centralizzato da 10kw/p
Infissi ad alte prestazioni di isolamento termico ed acustico in legno con verniciature esterne ad alta resistenza alle intemperie e colori interni personalizzabili
Finiture interne di pregio con pavimenti in gres/marmo, legno vero lamato e lucidato, parquet prefinito essenze a scelta, sanitari e rubinetterie. Il tutto su una vasta gamma di scelta a catalogo
Arredo bagno e box doccia forniti da capitolato
Domotica di base con accesso da remoto di accensione e spegnimento, apertura e chiusura tapparelle motorizzate, controllo delle temperature.
Realizzazione di rivestimento isolante su pareti esistenti con tecnologia innovativa spry/foam a bassissimo coefficiente di trasmittanza
Isolamento acustico interpiano e verso l'esterno molto prestante
Pareti interne con isolamento acustico ad alte prestazioni
Espulsione aria senza ricircolo per bagni e cucina
Impianti di produzione termica centralizzati
Pompa di calore geotermica con utilizzo di gas refrigerante R290 ad impatto effetto serra "0" GWP
No gas per una maggiore sicurezza ma sistema ad induzione
Impianti elettrici sovradimensionati con erogazione fino a 10kw/h
Punto di accesso rete internet con fibra ottica
Cavo antenna digitale terrestre per i vari ambienti a richiesta
Accessori per impianti elettrici personalizzabili
Predisposizione per impianto di videosorveglianza e antintrusione
Ascensore inserito nel vano scala con pareti vetrate a vista primaria marca mondiale
Parti comuni con servizio wi-fi, videocitofonia collegata da remoto
Porte sezionali per box auto motorizzate con radio-comando unificato carraio
Area verde condominiale con gazebo e accessori esterni di relax
Piantumazione con alberi a medio fusto sia sempreverdi che a foglia caduca
Fontana di arredo in giardino
Box auto larghezza mt 3,00
Cantine con portoncino tamburato serie pesante e serratura
Illuminazione esterna su indicazione di studio illuminotecnico
Ampi spazi condominiali con ricovero biciclette e locali di servizio
Realizzazione dei parapetti dei balconi e terrazzi di dimensioni importanti
Realizzazione ingresso con fermata interna e doppio video citofono
Realizzazione ingresso carraio con fermata interna e doppio cancello/portone
Pitturazioni interne colori tenui a richiesta
Per maggiori informazioni o per fissare un appuntamento per una visita, potete contattarci direttamente allo 0331.51.99.99 o se preferite, scriveteci tramite mail all'indirizzo: Legnano@bpre.it e sarete ricontattati nel più breve tempo possibile.
Inoltre, nel caso in cui per perfezionare l'acquisto, necessitiate di vendere il vostro attuale immobile, la nostra società potrà curare tutti gli aspetti necessari, suggerendovi la miglior soluzione di Vendita nel minor tempo possibile partendo dalla Giusta Valutazione del vostro immobile.
La Valutazione della Casa è un passo molto importante soprattutto se si vuole vendere in tempi rapidi e con il massimo profitto.
Per sapere quanto vale il vostro immobile, contattateci direttamente senza impegno e saremo lieti di fissare un appuntamento per una Giusta Valutazione.
Rimanendo a vostra disposizione per qualsiasi ulteriore informazione, vi ringraziamo per aver valutato la nostra offerta.
B&P Real Estate S.A.S. Legnano (MI) Via C. Del Fante n.16 - Tel. 0331.51.99.99 - mail: Legnano@bpre.it - Sito Internet: www.bpre.it

139 mq
2
2