200 mq
3
3
Legnano: in zona Parco Castello, confine con Canegrate, proponiamo in Vendita ampia porzione di Villa Bifamiliare in fase di realizzazione.
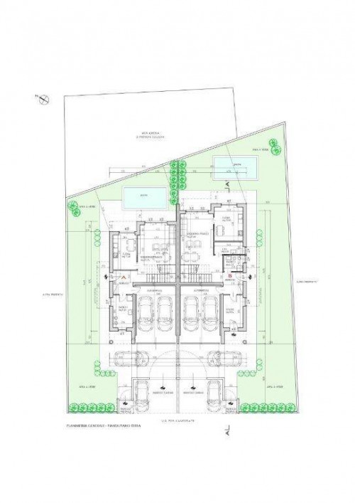
La Villa è disposta su due livelli e composta dal Piano Terra con ingresso, ampio soggiorno, cucina abitabile e bagno. Dalla scala interna si accede al piano superiore dove troveremo tre spaziose camere da letto, cabina armadio, ripostiglio e due bagni di cui uno con possibilità, assieme alla cabina armadio, di abbinarlo ad uso esclusivo della camera matrimoniale, i Tre balconi completano il piano.
Il giardino di circa 250 mq circonda la Villa sui tre lati liberi e su richiesta si avrà la possibilità di realizzare la piscina dove potersi rilassare e godere del silenzio e del verde del vicino parco.
Il Grande Box per due auto di circa 35 mq con accesso diretto all'abitazione completa la proprietà esclusiva ed in oltre ci sarà la possibilità di creare altri due posti auto.
Gli impianti saranno di ultima generazione con le maggiori tecnologie di risparmio energetico presenti sul mercato, per quanto riguarda il riscaldamento sarà a pavimento con con pompa di calore , l'impianto fotovoltaico e l'impianto domotico personalizzabile.
La struttura portante sarà in cemento armato ad alta resistenza sismica e durevole nel tempo, muratura in normablock con cappotto termico, serramenti con tripla camera, pareti con elevato k termico e totalmente isolate, con confort abitativo impareggiabile!!
Il progetto anche se presentato, in questa fase, potrà subire ancora delle varianti e vi è quindi la possibilità di modulare il proprio disegno a seconda delle proprie esigenze, l'impresa metterà a disposizione il progettista che si dedicherà alla realizzazione dei vostri desideri; si potranno inoltre scegliere le varie finiture.
La porzione di Villa Bifamiliare in Vendita a Legnano, è situata a pochi km dal centro e poche centinaia di metri dai servizi principali, dai centri commerciali e dal Parco Castello.
La consegna verrà concordata con la Parte Acquirente in base alla scelta del capitolato per le finiture.
Prezzo richiesto, incluso oneri di urbanizzazione, allacciamenti è di € 595.000,00.
NO IVA ma Imposta di Registro
Classe Energetica prevista A4 - EPglnr 13.96 KWh/mqa
Cod. Agenzia 358
I dati e le informazioni riportate nella presente scheda, non hanno alcun contenuto contrattuale e devono essere considerate indicative come sono puramente indicative le planimetrie e le metrature indicate. Eventuali arredi visibili nelle fotografie non sono oggetto della Vendita.
Per maggiori informazioni o per fissare un appuntamento per una visita, potete contattarci direttamente allo 0331.51.99.99 o se preferite, scriveteci tramite mail all'indirizzo: Legnano@bpre.it e sarete ricontattati nel più breve tempo possibile.
Inoltre, nel caso in cui per perfezionare l'acquisto, necessitiate di vendere il vostro attuale immobile, la nostra società potrà curare tutti gli aspetti necessari, suggerendovi la miglior soluzione di Vendita nel minor tempo possibile partendo dalla Giusta Valutazione del vostro immobile.
La Valutazione della Casa è un passo molto importante soprattutto se si vuole vendere in tempi rapidi e con il massimo profitto.
Per sapere quanto vale il vostro immobile, contattateci direttamente senza impegno e saremo lieti di fissare un appuntamento per la Giusta Valutazione.
Rimanendo a vostra disposizione per qualsiasi ulteriore informazione, vi ringraziamo per aver valutato la nostra offerta.
B&P Real Estate S.A.S. Legnano (MI) Via C. Del Fante n.16 - Tel. 0331.51.99.99 - mail: Legnano@bpre.it - Sito Internet: www.bpre.it

200 mq
3
3